Kaya Johanna 11 - The Real Estate Guy Bonaire
Kaya Johanna 11
Kaya Johanna 11 - The Real Estate Guy Bonaire
Kaya Johanna 11
Kaya Johanna 11 2, Kralendijk, Bonaire, NL
US$ 300.000 v.o.n.
Omschrijving
Similar Listings DescriptionLocated at Kaya Johanna 11 in the Antriol neighborhood, this property with four apartments offers an excellent opportunity for investors or those seeking a versatile living space. The 378 m² plot is leasehold land situated in Residential Zone I, where both residential homes and apartment buildings are permitted. The plot is easily accessible via an unpaved road and feat...
Similar Listings
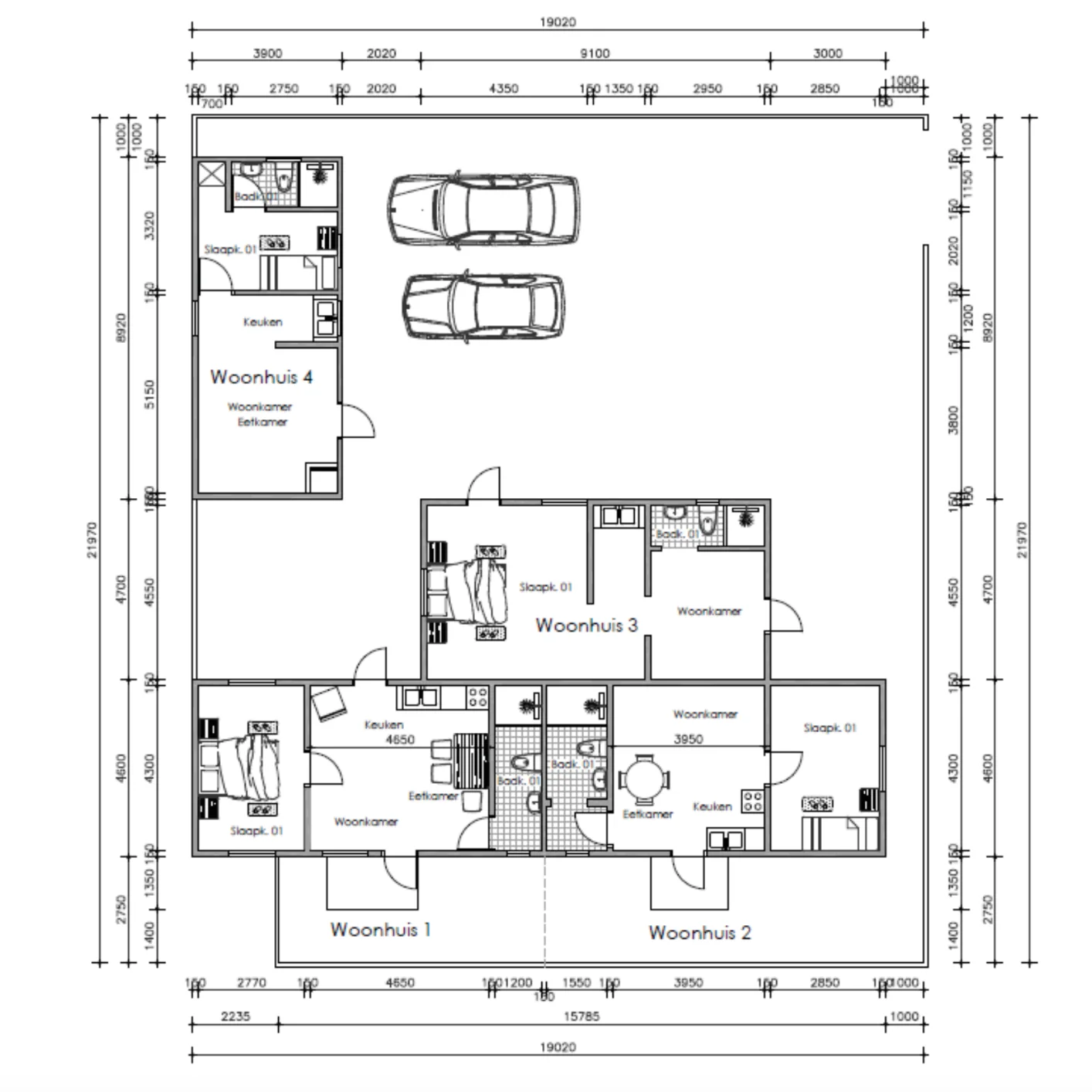
DescriptionLocated at Kaya Johanna 11 in the Antriol neighborhood, this property with four apartments offers an excellent opportunity for investors or those seeking a versatile living space. The 378 m² plot is leasehold land situated in Residential Zone I, where both residential homes and apartment buildings are permitted. The plot is easily accessible via an unpaved road and features street lighting, ensuring good accessibility. The property comprises three semi-detached homes and one detached house. The three semi-detached homes have a combined total area of 134 m², while the detached house measures 35 m². Each unit includes 1 bedroom, 1 bathroom, and a living room, dining area, and kitchen. The front terrace provides a pleasant outdoor space for each unit. With its prime location and development potential, this property offers a wealth of possibilities. Whether you’re looking for a rental investment, a multi-family residence, or a combination of both, these homes provide various options. The plot size of 378 m² offers ample space for future expansion or modifications to suit your needs. This is a fantastic opportunity for anyone interested in real estate development or creating multiple housing units on a centrally located plot. Schedule a viewing today and discover the potential of this versatile property!
Located at Kaya Johanna 11 in the Antriol neighborhood, this property with four apartments offers an excellent opportunity for investors or those seeking a versatile living space. The 378 m² plot is leasehold land situated in Residential Zone I, where both residential homes and apartment buildings are permitted. The plot is easily accessible via an unpaved road and features street lighting, ensuring good accessibility.
The property comprises three semi-detached homes and one detached house. The three semi-detached homes have a combined total area of 134 m², while the detached house measures 35 m². Each unit includes 1 bedroom, 1 bathroom, and a living room, dining area, and kitchen. The front terrace provides a pleasant outdoor space for each unit.
With its prime location and development potential, this property offers a wealth of possibilities. Whether you’re looking for a rental investment, a multi-family residence, or a combination of both, these homes provide various options.
The plot size of 378 m² offers ample space for future expansion or modifications to suit your needs. This is a fantastic opportunity for anyone interested in real estate development or creating multiple housing units on a centrally located plot.
Schedule a viewing today and discover the potential of this versatile property!